Osadnik zawiesiny mineralnej z zamknięciem pływakowym typ OZM ZP-PE 1,5...2,5

Aprobata Techniczna Instytutu Ochrony Środowiska w Warszawie nr AT/2012-08-0357

OZM ZP-PE   1,5 2 2,5
Pojemność całkowita [l] 1500 2000 2500
Pojemność użyteczna [l] 910 1400 1750
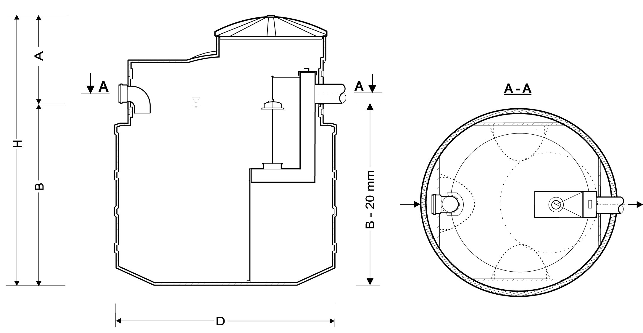
Średnica D [mm] 1220 1220 1220
Wysokość H [mm] 1480 1980 2580
Wysokość A [mm] 510 550 600
Dopływ/Odpływ max. [mm] 160 200 250
Zagłębienie dna zbiornika B [mm] 970 1430 1980
Masa całkowita [kg] 50 80 110

Przykładowy sposób oznaczania osadnika typu OZM ZP-PE

OZM ZP-PE – typoszereg
1,5 –pojemność nominalna [m3]

Charakterystyka urządzeń

  • Wyposażenie standardowe separatora stanowi pływakowe odcięcie odpływu zabezpieczające przed wypłynięciem zdeponowanych substancji ropopochodnych oraz pionowy kanał do poboru prób w odpływie.
  • Zbiornik separatora wykonany z linearnego PE HD formowanego metodą rotacyjną.
  • W przypadku gdy w warunkach rzeczywistych zagłębienie kanalizacji jest większe niż wartość „A” w tabelce, należy nadbudować separator dostosowaną nadstawką z PE.
  • Urządzenia w wykonaniu nienajazdowym z włazami wykonanymi z PE.
  • Producent gwarantuje stały stopień oczyszczania dla całego przepływu w odniesieniu do substancji ropopochodnych, zgodny z Rozporządzeniem Ministra Środowiska w sprawie warunków jakie należy spełnić przy wprowadzaniu ścieków do wód lub do ziemi.
Ważne! Nasza strona internetowa stosuje pliki cookies, tzw. ciasteczka. Kliknij "Zgadzam się", aby niniejsza informacja nie pojawiała się. Więcej...